| Jenama | MV Switchgear Accessories |
| Nombor Model | 12kV kabinet perlindungan alam (bertenaga udara tanpa gas SF6) mekanisme operasi pengasingan PT |
| voltan nama | 12kV |
| Arus nominal | 630A |
| Siri | NHK-J12 |
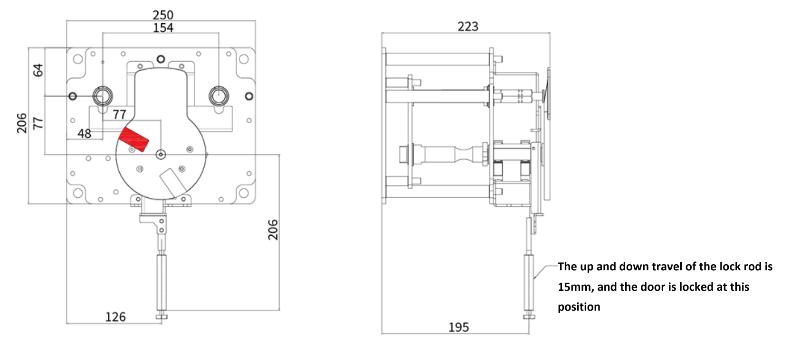
Mekanisme pengasingan PT kabinet perlindungan alam NHK-J12 sesuai untuk unit pengasingan PT siri 5.2 kabinet perlindungan alam. Mekanisme ini menggunakan prinsip pelepasan tenaga melalui pegas tekan di tengah. Poros operasi pengasingan terletak di sebelah kanan mekanisme, dan poros operasi grounding terletak di sebelah kiri mekanisme. Ia menggunakan struktur interlock mekanikal batang tunggal, dan struktur keseluruhan mekanisme padat dan mudah dipasang. Interlock mekanisme memenuhi keperluan pencegahan lima. Mekanisme operasi mematuhi keperluan standard seperti GB1984-2014, GB/T1022-2020, GB3804-2017, GB3906-2020, dan lain-lain.
Operasi buka tutup mekanisme
Operasi penghantaran kuasa:
①. Tutup pintu; ②. Masukkan gagang ke dalam lubang operasi grounding mekanisme G dan operasikan berlawanan arah jarum jam untuk memisahkan penguncian/grounding pintu bawah; ③. Masukkan gagang ke dalam lubang operasi pengasingan mekanisme G dan operasikan berlawanan arah jarum jam untuk menutup saklar pengasingan; Penghantaran kuasa selesai.
Operasi pemadaman kuasa:
①. Masukkan gagang ke dalam lubang operasi pengasingan mekanisme G dan operasikan searah jarum jam untuk membuka saklar pengasingan; ②. Masukkan gagang ke dalam lubang operasi grounding mekanisme G, operasikan searah jarum jam untuk menutup saklar grounding, matikan kuasa dan selesaikan operasi grounding (pada masa ini, pintu bawah boleh dibuka).

Parameter Produk
| Nombor Siri | Item | Unit | Parameter |
|---|---|---|---|
| 1 | Tahap Voltan | V | AC/DC220; AC/DC110; DC48; DC24 |
| 2 | Kuasa Dijangka | W | / |
| 3 | Alam Sekitar Operasi | °C | -40~+40 |
| 4 | Voltan Tahan Frekuensi Kuasa | kv | 2/1min |
| 5 | Julat Voltan Operasi Normal Kumparan Penutup | UL | / |
| 6 | Julat Voltan Operasi Normal Kumparan Pembuka | UL | / |
| 7 | Julat Operasi Voltan Rendah | UL | / |
| 8 | Gred Ketahanan Semburan Garam | h | 96 |
Dimensi Pemasangan
